
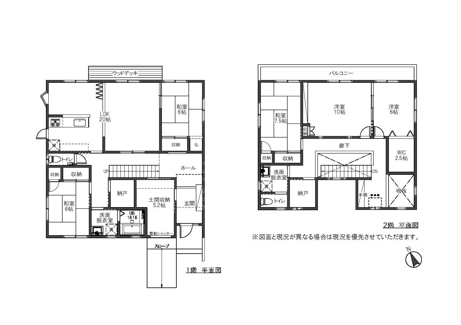
今回 紹介いたします建物 5SLDK+WIN で広々ですが
さらに たっぷり土間収納がついており しかも土間収納に外から直接アクセスできます
しかも電動シャッターで便利です
そしてしかも 土間収納前に車をつけることができ 荷物の出し入れが楽々です
と言うことは! 作業所や事務所に使えそうですよ
家に仕事場も確保したい方にも ぴったりです
車も3台停められるため 来客対応のキャパもありますね
夢広がります~


リビングは吹き抜けがあり
解放感あります




水回りのキレイです
そして 実は
広いシックな庭つきです
癒されます~
| 種別 | 中古住宅 |
|---|---|
| 物件名称 | 土間収納付き5SLDK+P3台 |
| 価格 | 4300万 |
| 所在地 | 静岡市葵区羽鳥4丁目8-10 |
| 交通 | 静岡駅からバス22分+徒歩3分 |
| 築年月 | 2008年 12月 |
| 構造・工法 | 木造 |
|---|---|
| 土地面積 | 313.78㎡ |
| 延床面積 | 165.2㎡ |
| その他面積 | - |
| 間取り | 5SLDK+WIN+土間収納 |
気になる物件のお問い合わせやご相談はオレンジハウスまで